Фундаменты грибовидные Ф 15.15
| Параметр | Значение |
|---|---|
| длина | 1500 мм |
| ширина | 1500 мм |
| высота | 3200 мм |
| вес | 2500 кг |
| серия | 3.407.1-157 |
| Норма погрузки на машину (20 тн) | 4 |
Краткая информация
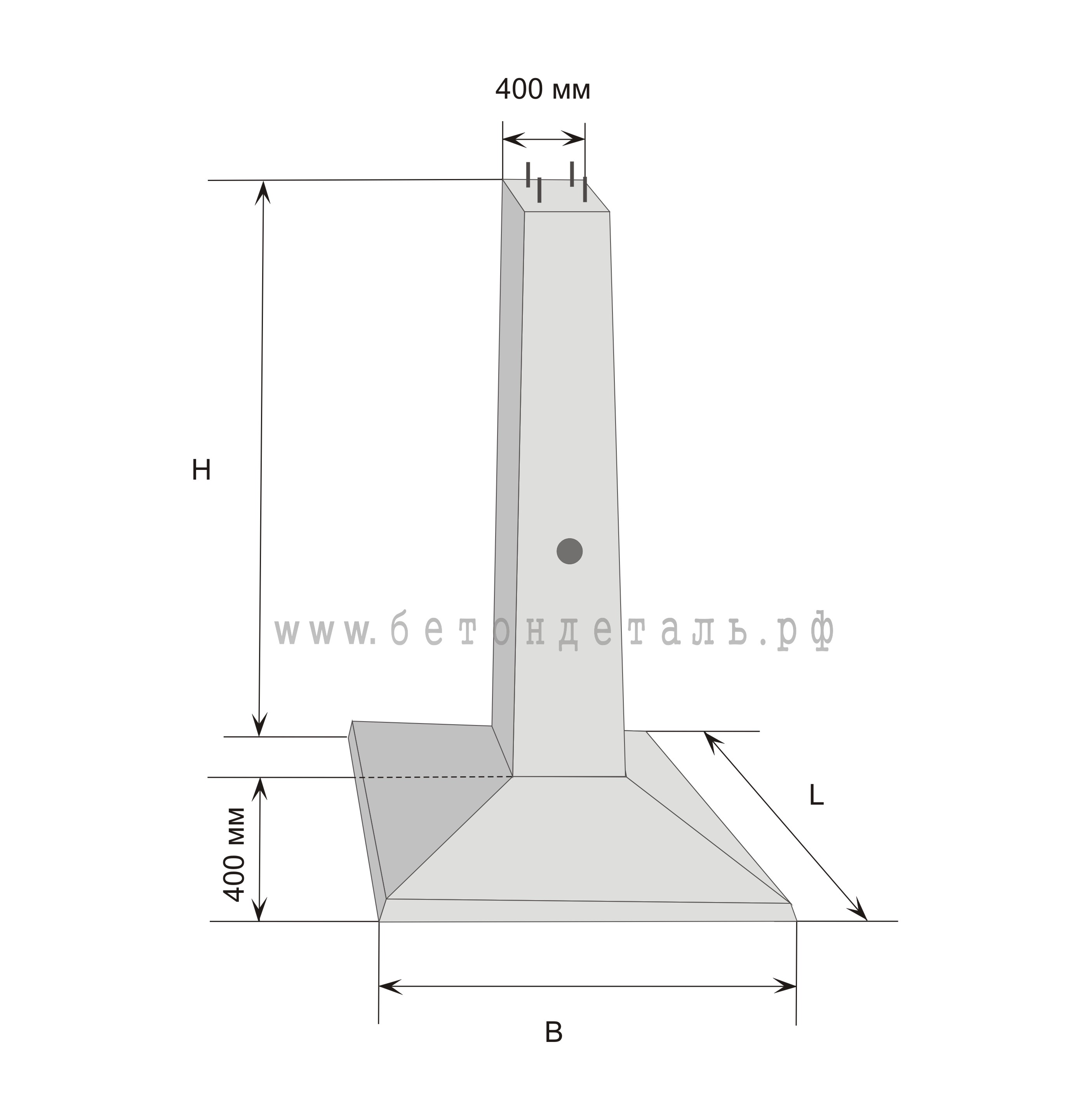
Фундамент грибовидный Ф 15.15 представляет собой монолитную конструкцию, состоящую из пирамидальной железобетонной плиты и расположенной на ней прямой стойки, в которую встроены закладные детали, предназначенные для крепления изделия к опоре.
Грибовидные подножники используются для монтажа линий электропедач номинальным напряжением 500 кВ. Глубина заложения фундамента варьируется от 1.5 до 2.5 м. Изделие обладает несущей спобобностью до 770кН.
Маркировка
Маркировка осуществляется согласно Серии 3.407.1-157 и включает в себя условные обозначения наименования, типоразмера и дополнительных характеристик.
Ф - грибовидный подножник;
15 - типоразмер;
Производство
Фундаменты грибовидные подножники Ф 15.15 производятся из тяжелого бетона класса В30. Показатель бетона по морозостойкости от F 150 до F 200, по водонепроницаемости - от W4 до W6. Грибовидный фундамент армируется сталью класса A-I, A-III. Для защиты стержни арматуры покрывают слоем бетона не менее чем на 30 мм. Закладные детали подножников проходят антикоррозийную обработку.
Допустимые отклонения по длине возможны в пределах 20 мм, по высоте - 5-8 мм, по массе - не более 5-7%. Ширина усадочных трещин должна быть не более 0.2 мм. Количество раковин на каждые 2 метра не должно превышать 1. Недопустимо наличие обнаженных концов арматуры.
Транспортировка и хранение
Перевозка изделий может осуществляться в железнодорожных вагонах с загрузкой до 14 штук или автотранспортом с загрузкой до 8 штук. Для изоляции подножников используются прокладки тощиной 40 мм.
Фундамент складируется в горизонтальном положении в 1 ряд или согласно специальным схемам хранения.
