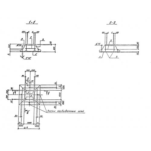
Ф1
Характеристики изделия:
| Параметр | Значение |
|---|---|
| длина | 2100 мм |
| ширина | 2100 мм |
| высота | 800 мм |
| вес | 4900 кг |
| серия | 0-221-84 |
Цена:
Рассчитать стоимостьФ1 Плиты фундаментные по серии 0-221-84.
| Параметр | Значение |
|---|---|
| длина | 2100 мм |
| ширина | 2100 мм |
| высота | 800 мм |
| вес | 4900 кг |
| серия | 0-221-84 |
Ф1 Плиты фундаментные по серии 0-221-84.
.jpg)