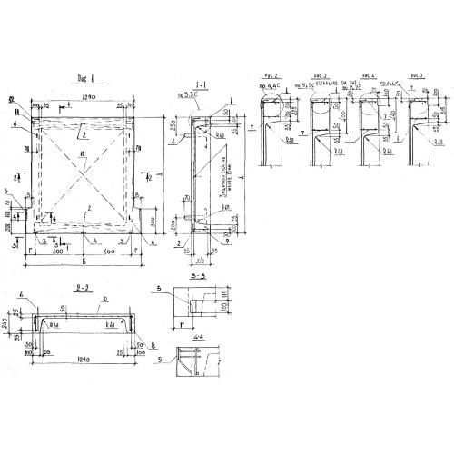
ЛПП 16.16 лестничные площадки

Чертеж изделия:
Характеристики изделия:
ПараметрЗначение
длина1610 мм
ширина1640 мм
высота240 мм
масса400 кг
нормативный документСерия 1.050.1-2

ЛПП 16.16  Лестничные площадки и полуплощадки ребристые Серия 1.050.1-2.