ПШЛ 50-30

Чертеж изделия:
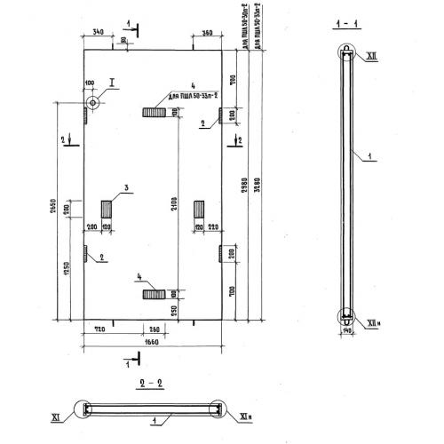
Характеристики изделия:
ПараметрЗначение
длина1660 мм
ширина140 мм
высота2980 мм
вес1730 кг
серия1.089.1-2

ПШЛ 50-30 Панель шахты для пассажирского лифта по серии 1.089.1-2.