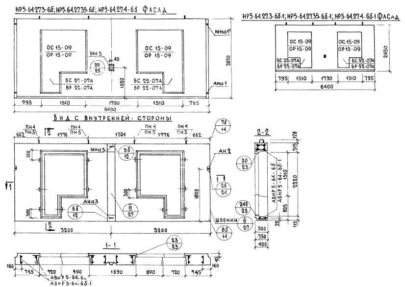
НР5-64.27.4-6б

Чертеж изделия:
Характеристики изделия:
ПараметрЗначение
Длина6400 мм
Ширина400 мм
Высота2650 мм
Масса6380 мм
Нормативный документСерия 1.132-1

НР5-64.27.4-6б   Наружная стеновая панель рядовая по Серии 1.132-1.