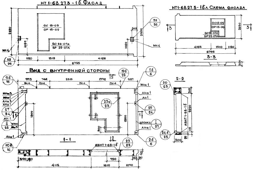
НТ1-68.27.3-1б

Чертеж изделия:
Характеристики изделия:
ПараметрЗначение
Длина6795 мм
Ширина300 мм
Высота650 мм
Масса6600 кг
Нормативный документСерия 1.132-1

НТ1-68.27.3-1б   Наружная стеновая панель торцевая по Серии 1.132-1.