ВБН 12.18.5
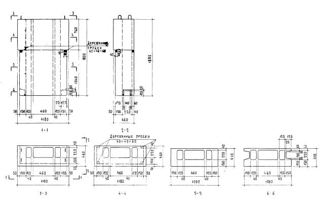
Характеристики изделия:
| Параметр | Значение |
|---|---|
| длина | 1180 мм |
| ширина | 460 мм |
| высота | 1800 мм |
| масса | 713 кг |
| нормативный документ | Серия 1.134-3 |
Цена:
Рассчитать стоимостьВБН 12.18.5 Наружные вентиляционные блоки Серия 1.134-3.
| Параметр | Значение |
|---|---|
| длина | 1180 мм |
| ширина | 460 мм |
| высота | 1800 мм |
| масса | 713 кг |
| нормативный документ | Серия 1.134-3 |
ВБН 12.18.5 Наружные вентиляционные блоки Серия 1.134-3.