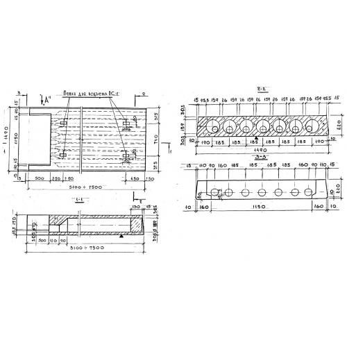
КНК 74.15
Характеристики изделия:
| Параметр | Значение |
|---|---|
| длина | 7400 мм |
| ширина | 1490 мм |
| высота | 220 мм |
| вес | 3272 кг |
| серия | 1.141.1 КР-3 |
Цена:
Рассчитать стоимостьКНК 74.15 Панели с круглыми пустотами с консольными выпускными ребрами по серии 1.141.1 КР-3.
| Параметр | Значение |
|---|---|
| длина | 7400 мм |
| ширина | 1490 мм |
| высота | 220 мм |
| вес | 3272 кг |
| серия | 1.141.1 КР-3 |
КНК 74.15 Панели с круглыми пустотами с консольными выпускными ребрами по серии 1.141.1 КР-3.
