ПК 58.18
Характеристики изделия:
| Параметр | Значение |
|---|---|
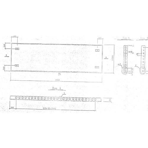
| длина | 5760 мм |
| ширина | 1790 мм |
| высота | 220 мм |
| вес | 3225 кг |
| серия | 1.241.1 КЛ-3 |
Цена:
Рассчитать стоимостьПК 58.18 Панели перекрытия многопустотные по серии 1.241.1 КЛ-3.
| Параметр | Значение |
|---|---|
| длина | 5760 мм |
| ширина | 1790 мм |
| высота | 220 мм |
| вес | 3225 кг |
| серия | 1.241.1 КЛ-3 |
ПК 58.18 Панели перекрытия многопустотные по серии 1.241.1 КЛ-3.
