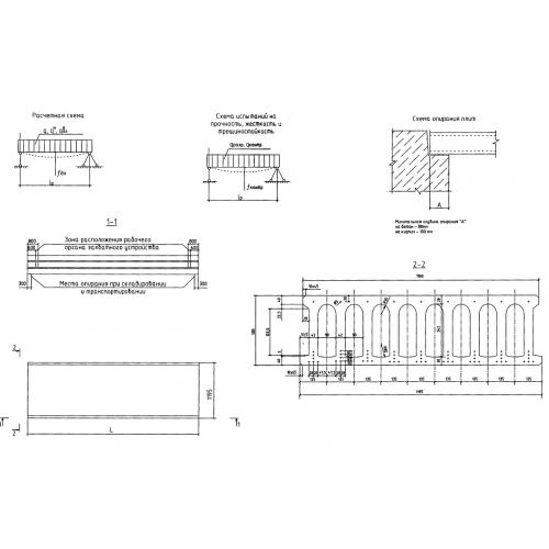
3ПБ 66-12

Чертеж изделия:
Характеристики изделия:
ПараметрЗначение
длина6580 мм
ширина1195 мм
высота300 мм
вес2930 кг
серия164/07-ПР-КЖ

3ПБ 66-12 Плита перекрытия многопустотная, выполненная методом непрерывного формования по серии 164/07-ПР-КЖ.