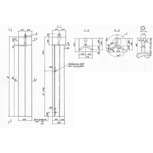
ТА 4.0

Чертеж изделия:
Характеристики изделия:
ПараметрЗначение
длина4000 мм
ширина670 мм
высота670 мм
вес1330 кг
серия3.501.1-149

ТА 4.0 Трехлучевые анкера по серии 3.501.1-149.