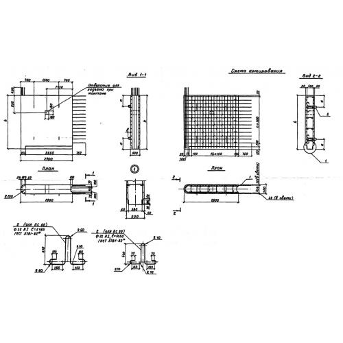
БС 30.29 блок стенки

Чертеж изделия:
Характеристики изделия:
ПараметрЗначение
длина3000 мм
ширина2900 мм
высота500 мм
вес10330 кг
нормативный документСерия 3.503.1-94

БС 30.29  Блоки стенок по Серии 3.503.1-94.