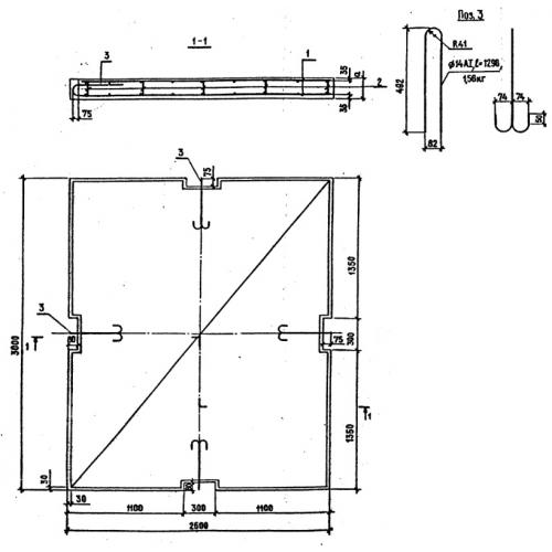
ПЖБ 3-20 Плиты железобетонные шарнирно-соединяемые
Характеристики изделия:
| Параметр | Значение |
|---|---|
| длина | 3000 мм |
| ширина | 2000 мм |
| высота | 200 мм |
| вес | 3000 кг |
| нормативный документ | Серия 3.503.9-78 |
Цена:
Рассчитать стоимостьПЖБ 3-20 Железобетонные плиты с шарнирным соединением по Серии 3.503.9-78.
