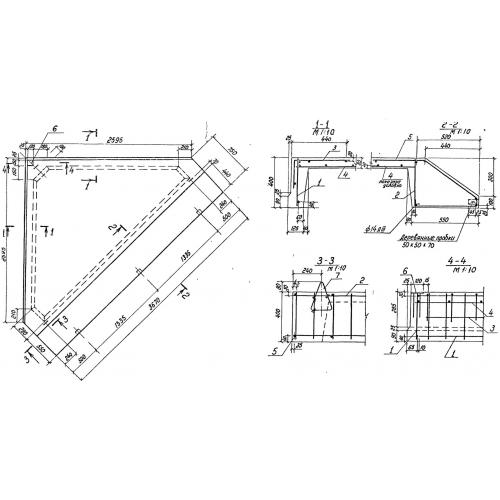
Д 3

Чертеж изделия:
Характеристики изделия:
ПараметрЗначение
длина3670 мм
ширина2595 мм
высота400 мм
вес2300 кг
серия3.702-1/79

Д 3 Плиты днища по серии 3.702-1/79.