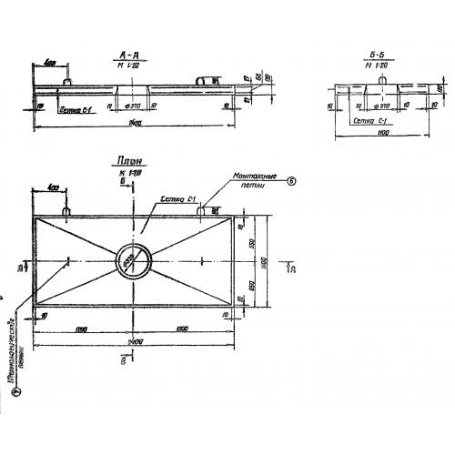
ПУ 3.0-6.0

Чертеж изделия:
Характеристики изделия:
ПараметрЗначение
длина2400 мм
ширина1100 мм
высота120 мм
вес750 кг
серия3.820-9

ПУ 3.0-6.0 Плиты упорные по серии 3.820-9.