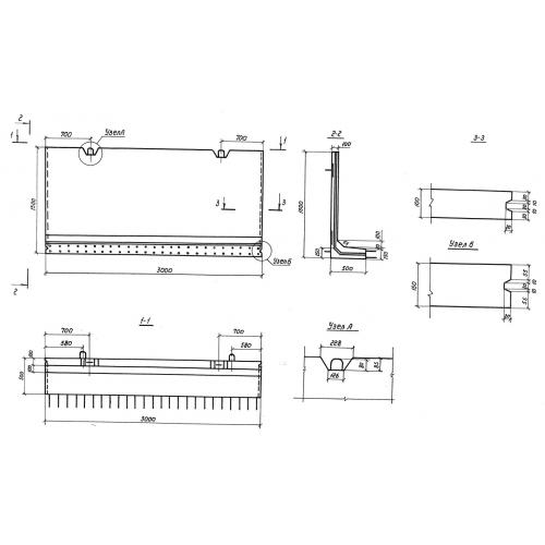
Г 15.30
Характеристики изделия:
| Параметр | Значение |
|---|---|
| длинга | 3000 мм |
| ширина | 680 мм |
| высота | 1500 мм |
| вес | 1650 кг |
| серия | 3.820.1-39 |
Цена:
Рассчитать стоимостьГ 15.30 Г-образные конструкции многоцелевого нзначения по серии 3.820.1-39.
| Параметр | Значение |
|---|---|
| длинга | 3000 мм |
| ширина | 680 мм |
| высота | 1500 мм |
| вес | 1650 кг |
| серия | 3.820.1-39 |
Г 15.30 Г-образные конструкции многоцелевого нзначения по серии 3.820.1-39.
