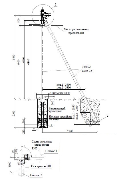
УА 30
Характеристики изделия:
| Параметр | Значение |
|---|---|
| длина | 9100 мм |
| ширина | 185 мм |
| высота | 265 мм |
| масса | 900 кг |
| нормативный документ | Шифр 26.0085 |
Цена:
Рассчитать стоимостьУА 30 Угловые анкерные двухцепные опоры Шифр 26.0085.
| Параметр | Значение |
|---|---|
| длина | 9100 мм |
| ширина | 185 мм |
| высота | 265 мм |
| масса | 900 кг |
| нормативный документ | Шифр 26.0085 |
УА 30 Угловые анкерные двухцепные опоры Шифр 26.0085.